START 서브노트 문제:
지반의 분류
정답:
지반의 분류
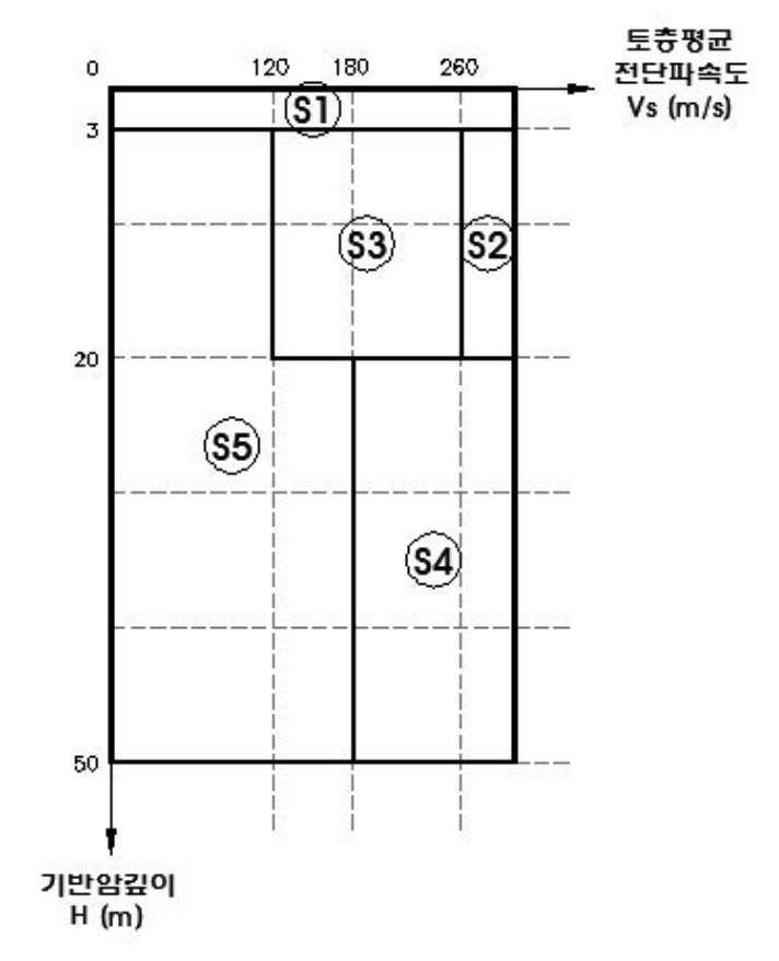
| 지반종류 | 지반종류의 호칭 | 기반암 깊이,H(m) | 토층평균전단파속도,Vs,soil(m/s) |
|---|---|---|---|
| S1 | 암반 지반 | 3미만 | - |
| S2 | 얕고 단단한 지반 | 3~20 | 260 이상 |
| S3 | 얕고 연약한 지반 | 3~20 | 120~260 |
| S4 | 깊고 단단한 지반 | 20 초과 | 180 이상 |
| S5 | 깊고 연약한 지반 매우 연약한 지반 | 20~50 3이상 | 120~180 120 미만 |
| S6 | 부지 고유의 특성평가 및 지반응답해석이 필요한 지반 |
- 기반암깊이가 3m 미만인 경우 S1지반으로 볼수있다
- KDS 17 에서는 기반암의 깊이가 1m 미만인 경우 암반으로 분류한다. 3m 미만의 얕은 토사조건은 진동주기 0.1초 미만의 구조물에만 지진하중을 국부적으로 증가시킨다. 또한 건축물의 경우 기초가 지표면으로부터 일정 깊이 이하에 설치되며 성토가 이루어지는 경우가 많으므로 암반지반을 정의하는 기반암 깊이를 3m로 수정하여 적용하였다.
- 기반암의 위치가 기준면으로부터 30m를 초과하는 경우 상부 30m에 대한 평균 전단파속도를 토층의 평균전단파속도로 볼 수 있다.
- 일반적으로 지반의 심도가 증가할수록 지반의 강도가 증가하므로 상부 30m까지의 전단파속도를 사용해도 안전측의 설계결과를 얻을 수 있다.
- 대상지역의 지반을 분류할 수 있는 자료가 충분하지 않고, 지반의 종류가 S5일 가능성이 없는 경우에는 지반종류 S4를 적용할 수 있다.
- 지반을 분류할 수 있는 자료가 충분하지 않는 경우에 S4를 적용할 수 있으며 지진토압 산정 시 암반까지의 심도는 국토지반정보 포털시스템에서 인접 시추공의 자료 활용, 지반의 변위를 산정하기 위한 지반의 물성은 평균전단파속도 180m/s 사용, 지반반력계수를 산정하기 위한 지반의 물성은 평균전단파속도 360m/s 사용
- 기반암은 전단파속도가 760m/s 이상
- 기반암깊이에 상관없이 전단파속도가 120m/s 미만이면 S5 적용
-첨부파일-🗑️/스크린샷-2024-10-07-22.19.50.png)
S6지반 조건
- 액상화가 일어날 수 있는 흙, 예민비가 8 이상인 점토, 붕괴될 정도로 결합력이 약한 붕괴성 흙과 같이 지진하중 작용 시 잠재적인 파괴나 붕괴에 취약한 지반
- 이탄 또는 유기성이 매우 높은 점토지반(지층의 두께 > 3m)
- 매우 높은 소성을 띈 점토지반(지층의 두께 > 7m 이고, 소성지수 > 75)
- 층이 매우 두껍고 연약하거나 중간 정도로 단단한 점토(지층의 두께 > 36m)
- 기반암이 깊이 50m를 초과하여 존재하는 지반
지반조사
대규모 건물, 경사지에 건설되는 건물, 또는 토사지반의 분포가 일정하지 않은 지반에 건설되는 건물에서 지반조사의 위치는 최소한 3곳 이상을 선정하고 지반조사를 수행한다.
지반분류의 기준면
각 지반조사 위치에서 지반분류의 기준면은 해당 위치의 지표면으로 정한다. 여기서, 지표면은 대상 건축물의 완공 후 지표면을 가리킨다.
KDS 17 내진설계일반 과의 차이점
- 기반암 기준 1m ←OK
- S5에 매우연약 추가 기반암 깊이 3이상 ← 이건 아님 (기존에 120 있음)
- 전단파속도 구분 120에 대한 내용 삭제 ← 이건 아님 (기존에 120 있음)
| 지반종류 | 지반종류의 호칭 | 기반암 깊이,H(m) | 토층평균전단파속도,Vs,soil(m/s) |
|---|---|---|---|
| S1 | 암반 지반 | 1미만 | - |
| S2 | 얕고 단단한 지반 | 1~20 | 260 이상 |
| S3 | 얕고 연약한 지반 | 1~20 | 260 미만 |
| S4 | 깊고 단단한 지반 | 20 초과 | 180 이상 |
| S5 | 깊고 연약한 지반 | 20 초과 | 180 미만 |
| S6 | 부지 고유의 특성평가 및 지반응답해석이 필요한 지반 |
END